
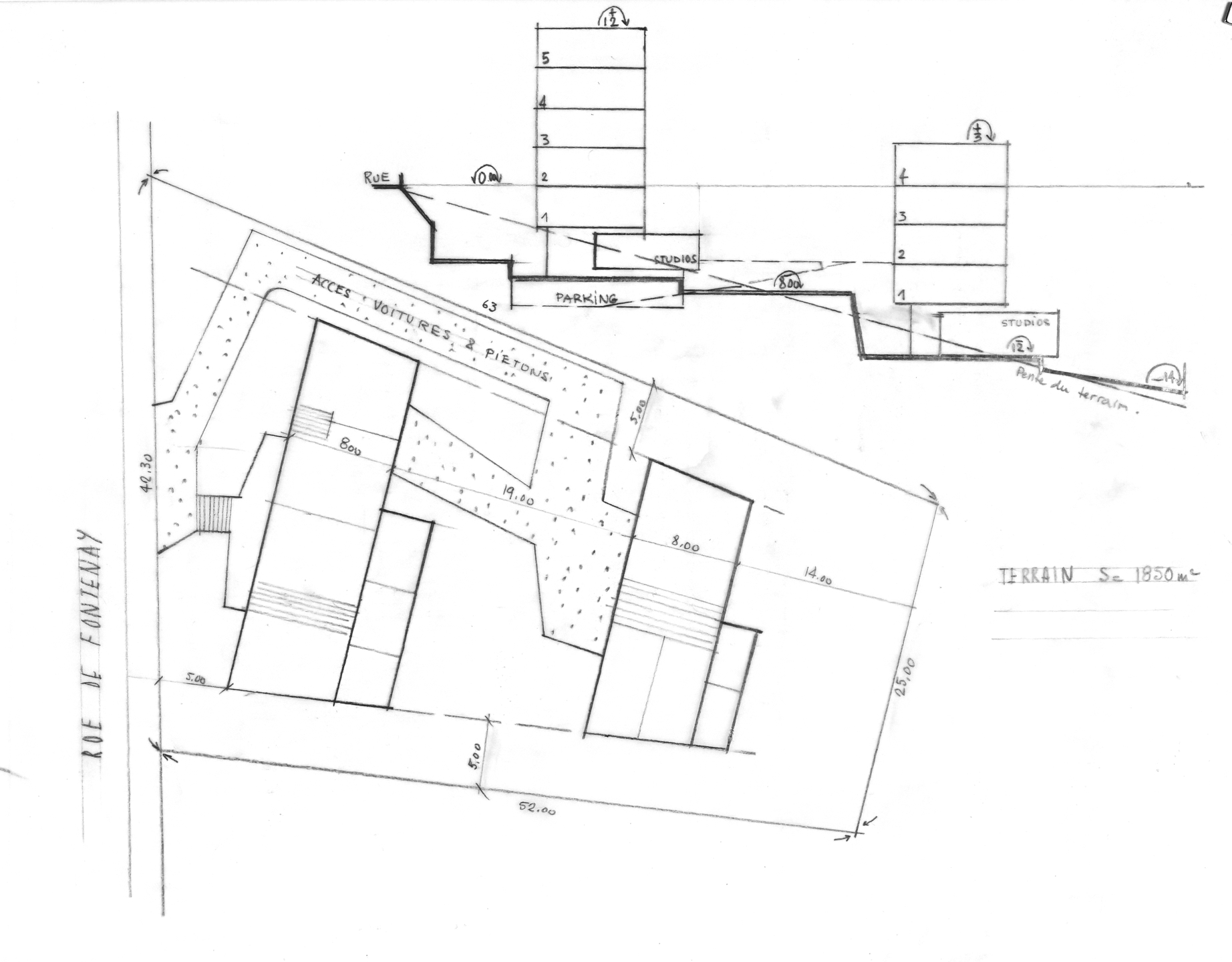
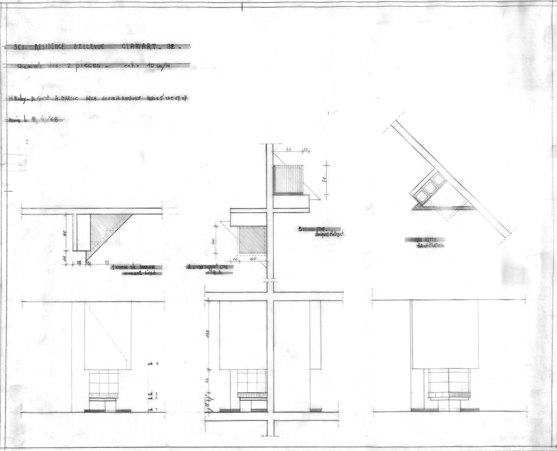
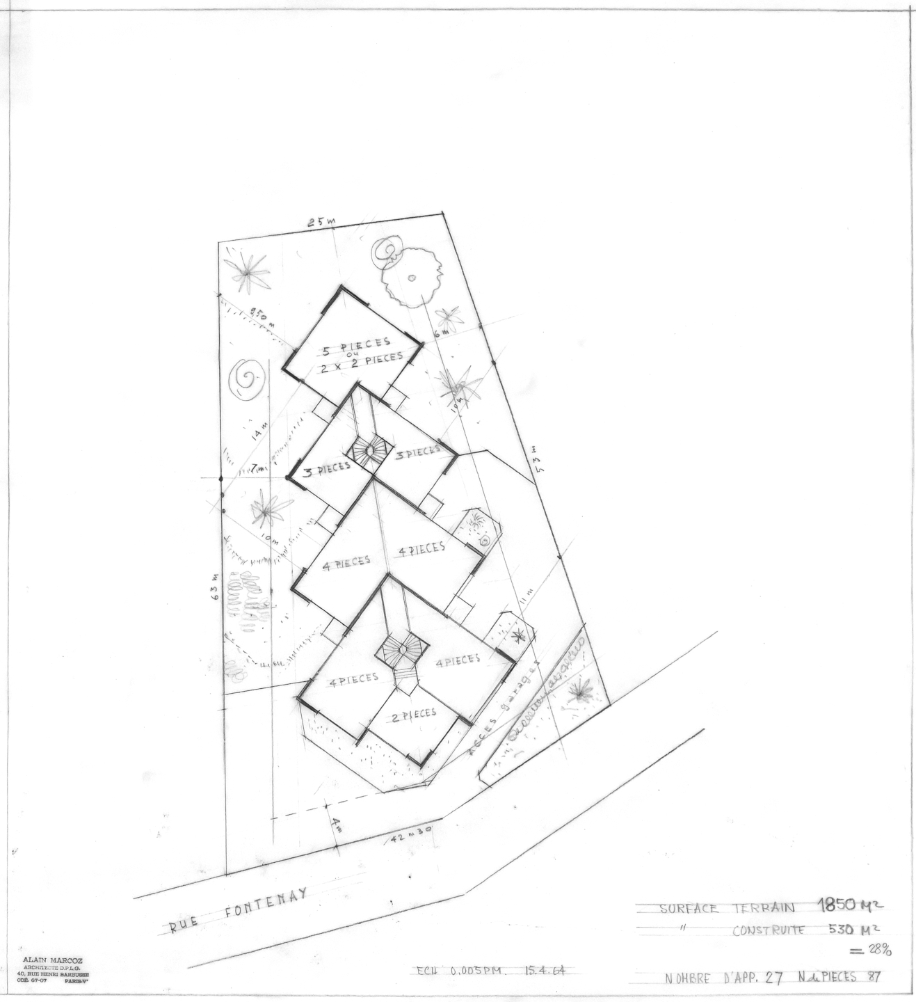
La résidence Bellevue a fait l'objet de plusieurs esquisse avant d'aboutir à sa formalisation définitive. Elle s'inscrit dans la pente du terrain tous les appartements bénéficiant d'une vue sur l'horizon parisien. Les appartements se déploient autour des trois escaliers hélicoïdaux afin de bénéficier tous d'une double exposition. Tous les détails ont été dessiné (grilles, sigle de la résidence, etc... Par un jeu subtil d'imbrication le volume général reste discret. Une seconde résidence (Dossier 71-01) devait être réalisée sur une parcelle voisine mais ne vit jamais le jour suite à des blocages administratifs. Le formalisme inspira Jean Renaudie pour des logements à Ivry-sur-Seine.
Adresse :
71-73 rue de Fontenay
92140 - Clamart
FRANCE
Date :
1967
RESIDENCE BELLEVUE A CLAMART
Réalisé
Type:
Associés :
Immeuble
D Ginat, A Marcoz



















































